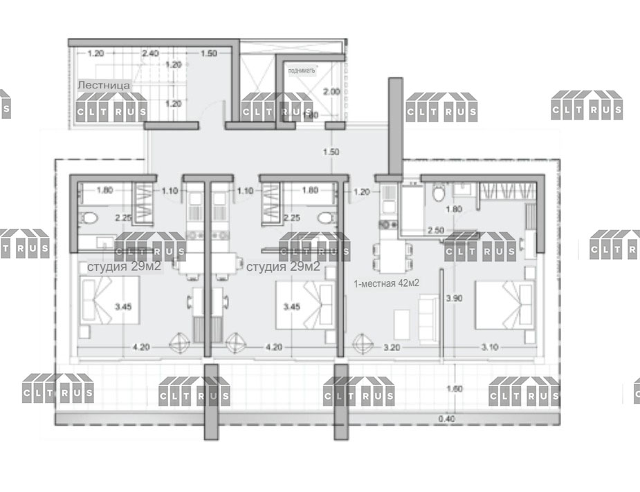
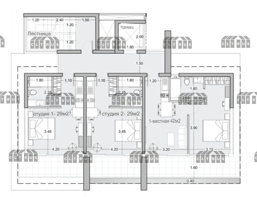
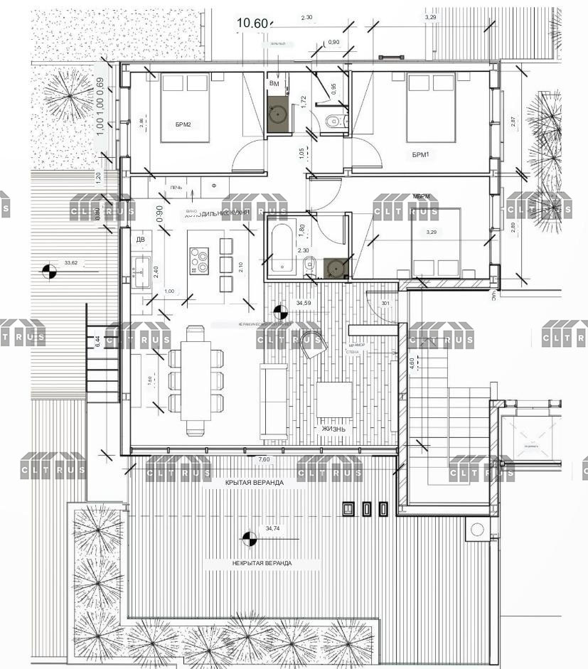
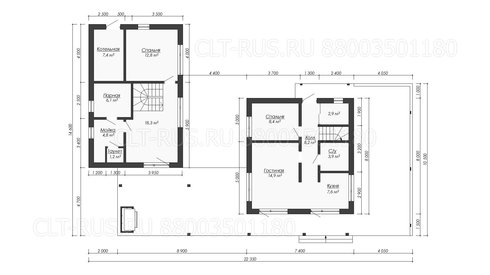
Описание объекта
Сквош в России только начинается. А инфраструктуры под него — почти нет. Мы сделали решение, которое закрывает эту нишу быстро, красиво и экономически оправданно.
Что такое SPORTBOX?
SPORTBOX — это модульный мини-спортцентр из CLT и клеёного бруса, полностью готовый под сквош.
Что внутри SPORTBOX:
— полноценное игровое поле под сквош
— высота зала до 8 метров
— акустическая CLT-обшивка (без эха и «бетонного» звона)
— панорамное остекление
— консоль второго этажа, где можно разместить:
• зону болельщиков
• раздевалки и санузлы
• комнату отдыха
• настольный теннис
• мини-коворкинг или lounge
Масштабирование:
SPORTBOX — это конструктор.
— 1 модуль → компактный сквош-клуб
— 2 модуля (6,5 × 22 м) → сквош-центр на 2 корта
— 4 модуля → мини-спорткомплекс
Можно начинать с малого и расти без переделок.
Что такое SPORTBOX?
SPORTBOX — это модульный мини-спортцентр из CLT и клеёного бруса, полностью готовый под сквош.
- Не «проект».
- Не «стройка на полгода».
- А готовый бизнес-объект, который можно собрать за 10–14 дней.
Что внутри SPORTBOX:
— полноценное игровое поле под сквош
— высота зала до 8 метров
— акустическая CLT-обшивка (без эха и «бетонного» звона)
— панорамное остекление
— консоль второго этажа, где можно разместить:
• зону болельщиков
• раздевалки и санузлы
• комнату отдыха
• настольный теннис
• мини-коворкинг или lounge
Масштабирование:
SPORTBOX — это конструктор.
— 1 модуль → компактный сквош-клуб
— 2 модуля (6,5 × 22 м) → сквош-центр на 2 корта
— 4 модуля → мини-спорткомплекс
Можно начинать с малого и расти без переделок.